Продается коммерческое помещение свободного назначения на 1 этаже
Помещения для бизнеса в удобных локациях
Главнаяarrow_forward_iosПродажаarrow_forward_iosКоммерческаяarrow_forward_iosОбъект №7955
Состояние: После капитального ремонта, коммуникации подведены.

Особенности: Высокий проходной трафик, возможно сделать отдельный вход.

Назначение: Магазин, салон, кафе, офис, шоу-рум, аптека, и др.
Документы все в наличии.
Статус: нежилое помещение (возможен перевод в жилое)
Ссылка на объявление: https://so42.ru/sale/salecommercial/7955
10 500 000
Наталья Станиславовна Нестерова


Кемеровская область - Кузбасс область, Кемерово, улица Инициативная, д 117

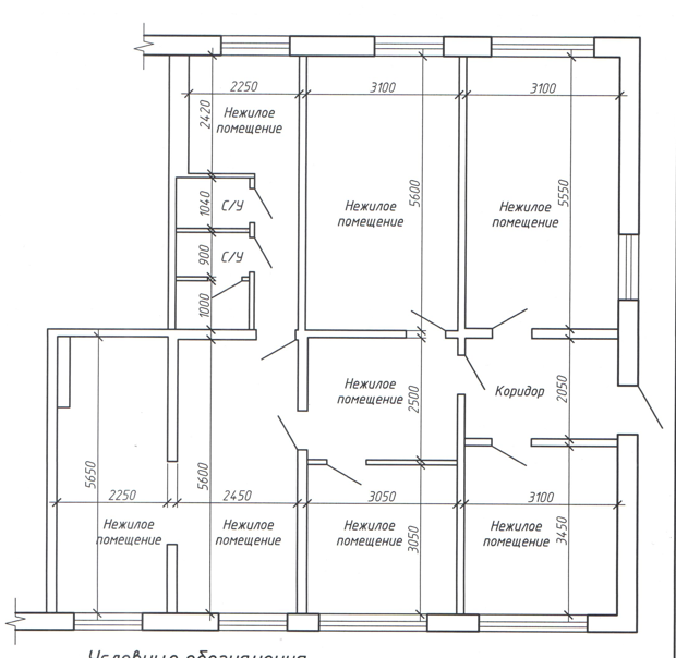
Информация по объекту

Площадь107 Этаж1 Этажей в доме5 Высота потолков2.5 Юридический адресПредоставляется ПланировкаОткрытая Кол-во мокрых точек2 СостояниеПод чистовую отделку МебельНет ДоступСвободный ПарковкаНаземная НалогУСН (упрощенная система налогообложения)

Информация по зданию

Тип строенияЖилой дом

Инфраструктура